There are multiple listings for this address:
116 Prospector Lp Kellogg
$95,000
0.33 acres
beds
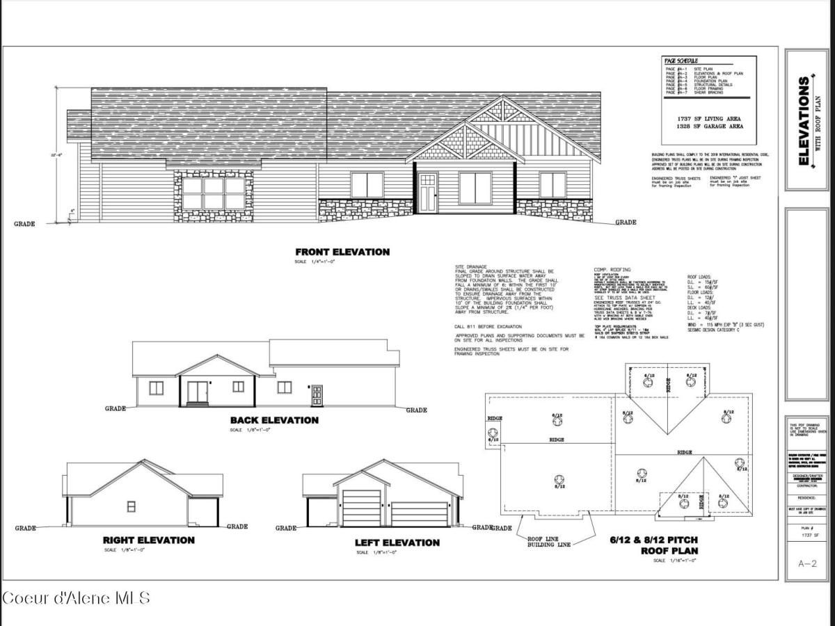
*TO BE BUILT – Discover the ultimate location for your forever home in the beautiful up and coming Galena Ridge community, nestled next to the stunning Galena Ridge Golf Course and just a short drive to the Silver Mountain Ski Resort. This scenic 1/3-acre lot (with trees) on the mountainside offers sweeping views of North Idaho’s natural beauty. With all utilities already in place—including natural gas, city water, sewer, power, and high-speed fiber internet—this property is ready for you to begin building. Enjoy breathtaking views of the surrounding mountains in a location that caters to outdoor enthusiasts, golfers and winter sports lovers alike. Nearby attractions include hiking and mountain biking trails, a ski resort, waterpark and sightseeing opportunities – making this a prime location in this up and coming community at Galena Ridge. Plans are for 3-bedroom, 2.5-bathroom single-level home with a RV Garage AND a 2 car garage, where you get to… choose your finishes. Standard finishes include quartz countertops, customized flooring options, and AC. Plan alterations may be allowed and pricing will reflect plan alterations. This is your opportunity to embrace a lifestyle surrounded by luxury homes and unparalleled recreational access. Don’t miss out on building your slice of paradise at Galena Ridge.. exterior rendering and interior photos are stock photos to be used for example purposesfrom a previously built home And do not necessarily reflect the exact finishes or exterior look and design of the home. * Builder is a licensed rreal estate agent
Property Details
Price:
$95,000
MLS #:
25-2473
Status:
Active
Beds:
0
Baths:
0
Type:
Land
Subtype:
Site Built < 2 Acre
Subdivision:
Galena Ridge I
Neighborhood:
12silvervalley
Listed Date:
Mar 21, 2025
Total Sq Ft:
1,737
Lot Size:
14,375 sqft / 0.33 acres (approx)
Year Built:
Schools
School District:
Kellogg JT – 391
Interior
Appliances
Gas Range, Gas Water Heater, Microwave, Disposal, Dishwasher
Flooring
Tile, Carpet, LVP
Heating
Natural Gas, Electric, Forced Air, Furnace
Laundry Features
Electric Dryer Hookup
Exterior
Construction Materials
Fiber Cement, Stone, Frame
Exterior Features
See Remarks, Lawn
Parking Features
Paved Parking
Roof
Composition
Financial
HOA Frequency
Quarterly
HOA Name
Galena Ridge
Tax Year
2024
Taxes
$1,317
Map
Agent Details
Contact Me
Similar Listings Nearby

116 Prospector Lp
Kellogg, ID
116 Prospector Lp Kellogg
$776,000
0.33 acres
3 beds
*TO BE BUILT – Discover the ultimate location for your forever home in the beautiful up and coming Galena Ridge community, nestled next to the stunning Galena Ridge Golf Course and just a short drive to the Silver Mountain Ski Resort. This scenic 1/3-acre lot (with trees) on the mountainside offers sweeping views of North Idaho’s natural beauty. With all utilities already in place—including natural gas, city water, sewer, power, and high-speed fiber internet—this property is ready for you to begin building. Enjoy breathtaking views of the surrounding mountains in a location that caters to outdoor enthusiasts, golfers and winter sports lovers alike. Nearby attractions include hiking and mountain biking trails, a ski resort, waterpark and sightseeing opportunities – making this a prime location in this up and coming community at Galena Ridge. Plans are for 3-bedroom, 2.5-bathroom single-level home with a RV Garage AND a 2 car garage, where you get to… choose your finishes. Standard finishes include quartz countertops, customized flooring options, and AC. Plan alterations may be allowed and pricing will reflect plan alterations. This is your opportunity to embrace a lifestyle surrounded by luxury homes and unparalleled recreational access. Don’t miss out on building your slice of paradise at Galena Ridge.. exterior rendering and interior photos are stock photos to be used for example purposesfrom a previously built home And do not necessarily reflect the exact finishes or exterior look and design of the home. * Builder is a licensed rreal estate agent
Property Details
Price:
$776,000
MLS #:
25-7263
Status:
Active
Beds:
3
Baths:
2.5
Type:
Single Family
Subtype:
Site Built < 2 Acre
Subdivision:
Galena Ridge I
Neighborhood:
12silvervalley
Listed Date:
Jul 13, 2025
Finished Sq Ft:
1,737
Total Sq Ft:
1,737
Lot Size:
14,375 sqft / 0.33 acres (approx)
Year Built:
Schools
School District:
Kellogg JT – 391
Interior
Appliances
Gas Range, Gas Water Heater, Microwave, Disposal, Dishwasher
Flooring
Tile, Carpet, LVP
Heating
Natural Gas, Electric, Forced Air, Furnace
Laundry Features
Electric Dryer Hookup
Exterior
Construction Materials
Fiber Cement, Stone, Frame
Exterior Features
See Remarks, Lawn
Parking Features
Paved Parking
Roof
Composition
Financial
HOA Frequency
Quarterly
HOA Name
Galena Ridge
Tax Year
2024
Taxes
$1,317